江苏省南通中学
办公室隔断项目(二次)竞争性谈判公告
江苏省南通中学办公室隔断项目(二次)拟用竞争性谈判方式组织采购。欢迎符合资质要求并有供货能力的单位踊跃参加。
一、项目内容:
1、项目名称:江苏省南通中学办公室隔断项目(二次)
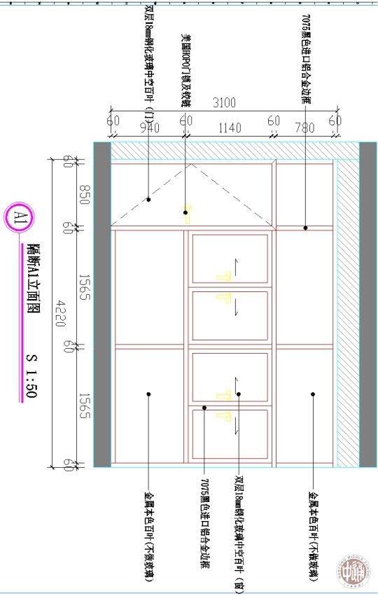
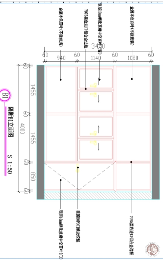
2、项目清单:见附件图纸及要求。
3、 项目审计:本项目需审计,最终结算价以审计结果为准,但当审计结果高于合同价时,按合同价执行。其他审计条款均按南通市教育局文件(通教审【2015】15号文件执行。
4、供货要求:供货并安装完成截止时间为2018年6月5日。
5、成交原则:二次报价,符合项目需求且第二次报价最低者中标。
6、本次采购质量优先,中标人必须严格按照“国家标准、招标文件、投标文件(含现场书面承诺)”中最优的部分提供最终产品,不得以任何借口降低标准。任何中标人不得弄虚作假,以次充好,对提供不合格的产品的中标人不予退还保证金并记入黑名单,并保留进一步追究责任的权利;
二、供应商资格要求:
(一)供应商参加竞谈应当具备的条件
(1)具备《政府采购法》第22条所规定的条件;
(2)具有独立的法人资格,有效的营业执照及税务登记证;
(3)供应商及法人在参加本次投标前三年内在经营活动中没有重大违法记录;
(二)采购单位要求的其他必备资格要求
1.投标人资质:投标人必须具备木制品、办公家具、家具销售或装修建材销售能力的合法供应商。
2.投标人案例:投标人近五年内必须有至少一例合同金额5万元(含)以上的玻璃幕墙、玻璃隔断的成功案例。(提供合同、验收单等复印件,原件带至现场查验)
(三)不接受的情形
1.不接受联合体参与竞谈。
2.不接受单位负责人为同一人或者存在控股、管理关系的不同单位参与竞谈。
3.不接受兼有直系亲属及配偶以不同实体形式参与本次竞谈。
4.不接受投标单位代表不到竞谈现场的投标。
请各投标人认真对照资格条件,以上有关资质证明均需在资格初审过程中和竞谈文件中提供,原件带至现场备查。如不符合要求的,无意或故意参与报名、竞谈所产生的一切后果由投标人自行承担。
三、项目最高限价、投标保证金、付款方式
1.项目预算:5万元(报价不得超过预算价,报价包含运输、安装、拆除、清理等所有费用);
2.参与竞谈时,交纳竞谈保证金人民币贰仟元整(现金、密封),未按时提交上述保证金的,视为放弃;
3.竞谈结束后,未中标者的保证金无息退还。中标者的竞谈保证金转为履约保证金,待项目施工完毕验收合格后无息退还。
4.付款方式:
(1)项目竣工验收合格后付合同价的70 %。
(2)项目竣工结算审计后付至审计价的95 %(审计价高于合同价时,付至合同价的95 %)。
(3)质保期满时付审计价的 5 %(审计价高于合同价时,付合同价的5 %;质保期一年)。
四、报名和现场踏勘:
报名时间:2018年5月17日上午8:30-9:00。
报名地点:江苏省南通中学(中学堂街9号)科学楼107室后勤处办公室。
报名须知:投标人报名时必须递交相关资质文件(法人委托书、营业执照、税务登记(或三证合一营业执照)、委托人身份证、至少一例成功案例(要求见供应商资格要求)等,均为复印件,原件带至现场备查)给学校进行资格初审,文件不全将视为资格不符(本次仅为资格初审,投标供应商最终资格是否符合由投标现场评审决定)。
现场踏勘:各投标人应认真踏勘现场,熟悉了解周围交通道路和限行时段、限行方向(学校地处市中心地段,限行规则较多),合理安排好施工过程中运输车辆行驶路线及时间点;充分考虑本项目施工与学校暑期少量教育教学工作的冲突等(凡有冲突,均需调整施工工序,不得影响学校正常教育教学工作)。以上这些均需包含在综合报价中,投标人中标后,不得以不了解现场情况等为理由而向校方提出任何额外要求,不得以现场施工有难度等为理由而影响工程进度,对此校方不承担任何责任并将不作任何答复与考虑。
领取招标文件:资格初审通过的投标人,经过现场踏勘后,提交校方“现场勘察确认函”,经校方签字确认后,领取竞谈文件。未按时间报名的,视为放弃。
招标文件答疑:投标人领取招标文件后,现场阅读查看招标文件和图纸要求,并当场提出咨询和疑问,校方当众对所有投标人进行现场答疑。各投标人离开后即视作无任何咨询和疑问,此后校方将不再回复与答疑。
联系人:朱老师 电话:(0513)85119618。
五、投标文件材料组成:
1、竞谈文件:
一式一份(不得包含报价清单,但必须包含以下内容并装订成册,再密封并加盖公章。除法人身份证原件外,其他原件带至投标现场备查)。
A.营业执照副本复印件及税务登记证复印件(或“三证合一”营业执照,加盖公章);
B.法人身份证复印件、授权人身份证复印件(加盖公章);
C.法人代表授权书(法人签字,加盖公章;法人本人参与投标则不需要);
D.现场勘察确认函(无现场勘察确认函的判定为无效投标人)。
2、报价清单 (一式一份,须单独密封)
A.第一次报价清单,格式参见附件。
B.第二次报价单。本次报价需在评审现场填写,格式参见附件。第二次报价不得高于自己的第一次报价,并承诺在第一次报价的货物清单基础上按比例下浮。
(3)保证金:竞谈保证金人民币贰仟元整(现金、单独密封);
五、评审过程:
(1)评审截止时间之前到达评审现场,签到,提交投标材料;
(2)对投标供应商进行资格审核,通过审核者进入下一评审环节;
(3)当众拆封投标供应商的第一次报价并当众宣读确认;
(4)投标供应商现场进行第二次报价;
(5)当众宣读并确认投标供应商的第二次报价;
(6)当众宣布第一中标候选人。
六 、投标文件接收截止及开标时间、地点:
时间:2018年5月18日上午8:30分
特别提醒:投标文件必须按时送达,否则概不接收。
地点:江苏省南通中学科学楼一楼会议室
竞谈活动联系人:朱老师
电话:0513-85119618
特殊情况,另行通知。
江苏省南通中学
2018.5.14
附件一:
法定代表人授权书
江苏省南通中学:
(单位名称) 系中华人民共和国合法企业(单位),法定地址: 特授权 代表我公司全权办理针对江苏省南通中学办公室隔断项目(二次)的竞争性谈判投标,并签署全部有关文件、协议及合同。
我公司对被授权人签名的所有文件负全部责任。
被授权人签署的所有文件(在授权书有效期内签署的)不因授权的撤销而失效,本授权书自投标开始至合同履行完毕止。
被授权人(签字): 性别: 年龄: 职务:
身份证号码:
通讯地址:
联系电话:
法定代表人(签字):
投标单位(盖章):
年 月 日
附件二:图纸及要求
![]() |
![]() |
![]() |
附件三:
江苏省南通中学竞谈采购报价单
我单位决定参加本次投标,郑重承诺如下:我单位所投主要产品的价格低于市场正常零售价,不存在串通投标、弄虚作假、行贿等违法行为,也没有以他人名义投标,如违反承诺,我单位愿承担一切责任。
|
第一次报价: |
|
|
|
|
|
项目 |
单位 |
数量 |
单价 (元/平方米) |
合计 |
|
办公室隔断 |
平方米 |
28 |
|
|
|
设计费 |
次 |
1 |
2000 |
2000 |
|
第一次报价 合计(元) |
(大写) |
|
||
|
(小写) |
|
|||
(注:数量暂定为28平方米,最终结算以审计结果为准,但当审计结果高于28平方米时,按28平方米结算。准确尺寸由中标供应商现场自行量取确定。)
法人代表或授权人(签名): 单位(盖章):
2018年 月 日
|
第二次报价: |
|
|
|
|
|
项目 |
单位 |
数量 |
单价 (元/平方米) |
合计 |
|
办公室隔断 |
平方米 |
28 |
|
|
|
设计费 |
次 |
1 |
2000 |
2000 |
|
第二次报价 合计(元) |
(大写) |
|
||
|
(小写) |
|
|||
(注1:数量暂定为28平方米,最终结算以审计结果为准,但当审计结果高于28平方米时,按28平方米结算。准确尺寸由中标供应商现场自行量取确定。)
(注2:第二次报价仅在投标现场填写,可分项填写汇总,也可只填总价,货物单价在第一次报价的货物清单基础上按比例下浮。)
法人代表或授权人(签名):
2018年 月 日
附件四:
现场勘察确认函
江苏省南通中学:
依据贵单位 江苏省南通中学办公室隔断项目(二次) (采购项目名称)项目招标文件的要求。我方已派本次项目负责人 于2018年 月 日对该项目进行了现场勘察,现就现场勘察情况做如下承诺:
1、经现场勘察,我方已熟悉与该项目相关的技术参数要求、供货要求、安装现场、施工环境、现场周围交通道路等所有情况。
2、我方承诺自行承担本次现场勘察所发生的所有费用并承担勘察现场的相关责任和风险。
3、我方承诺在任何情况下均不以不了解现场情况为理由而向采购人提出任何额外的要求。
投标人: (加盖公章)
法定代表人或被授权人: (签 名)
年 月 日
(投标单位)已派 进行现场勘察 ,并作出现场勘察承诺:一旦成交不对现场条件提出任何额外要求。
特此证明。
江苏省南通中学后勤处(盖章)
委托人: (签名)
年 月 日




账号+密码登录
手机+密码登录
还没有账号?
立即注册